Gempen, Im Wegacker

Ein aussergewöhnliches Einfamilienhaus

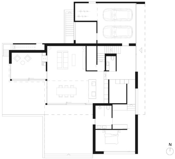
Für eine private Bauherrschaft durften wir ein einzigartiges Einfamilienhaus mit viel Platz und schöner Aussicht planen. Das Haus steht auf der Hochebene von Gempen, nahe dem Erholungsgebiet mit freier Sicht über grüne Felder hin zu den Wäldern des Gempenplateau.

Typologie

Einfamilienhaus

Jahr

2019-2020

Status

Abgeschlossen

Kunde

Privat

Leistungen

Projektentwicklung, Architektur

Die Architektur und die Material- und Farbgestaltung wurden so gewählt, dass ein aussergewöhnliches Familienhaus entstand, welches ruhig und grosszügig wirkt. Die verschiedenen Dachausschnitte und die grossen Fenster sorgen für helle, lichtdurchflutete Räume und sorgen für Wohlbefinden. Die spannende Raumabfolge, der grosszügige Sitzplatz und die schöne Terrasse hin zum grossen Garten lassen keine Wünsche offen.

KUNDENSTIMME

«Unsere Wünsche und Bedürfnisse wurden auf eine Weise umgesetzt, die unsere Erwartungen übertroffen haben.»

Sandra Brogli

Add Your Heading Text Here

_

PARTNERFIRMEN