Typologie
Jahr
Status
Kunde
Leistungen
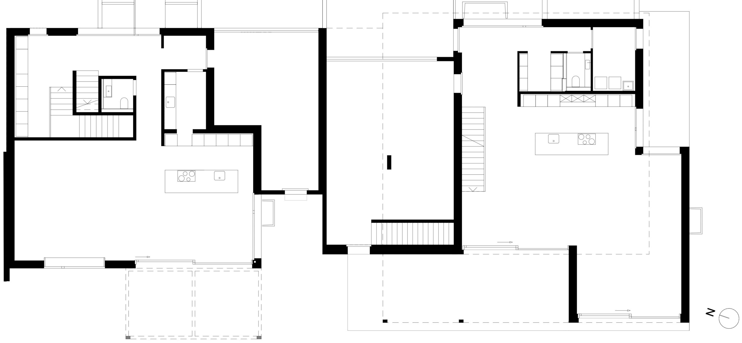
Passend zu unserer Architektur gestaltete Einrichten Schweigert das Interieur und lieferte unter anderem Küche und verschiedenste Möbel. Die Farben aussen wie auch innen sind warm gehalten und geben ein schönes, modernes und ruhiges Gesamtbild.
KUNDENSTIMME
«Wir fühlen uns in unserem Zuhause einfach unheimlich wohl!»
Add Your Heading Text Here
_




PARTNERFIRMEN
Bauleitung CSG Baumanagement AG
Fotografie Börje Müller Fotografie